Heijningen
Heijningen wordt groener. Want een groener dorp kan beter tegen extreem weer, zoals flinke regenbuien of hitte. Waar het groen komt, bepalen inwoners en de dorpstafel-werkgroep Klimaatbestendig Heijningen samen met de gemeente. Zelf aan de slag? Er komt ook hulp voor mensen die hun eigen tuin willen vergroenen.
Samen met inwoners het dorp en de tuinen groener maken, dat is het doel van Groener Heijningen.
Heijningen op basis van 3-30-300



Lees meer over de bewonersbijeenkomst Heijningen.
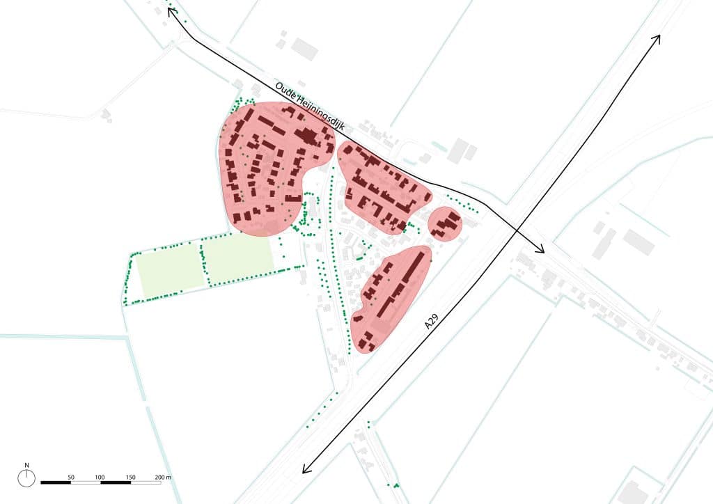
Vergroeningskaart
Samen met de gebiedstafel en vertegenwoordigers uit Heijningen is in een aantal sessie gewerkt om de wensen en kansen voor de vergroening op een kaart te krijgen. Alle projecten zijn op de kaart gezet, alles kan is het credo. De doorlooptijd voor de realisatie is nu gesteld op 10 jaar.

Deze vergroeningskaart wordt in de komende dorpstafel definitief gemaakt begin februari.
Alle ideeën op de vergroeningskaart zijn naast de bijdrage aan de 3-30-300 regel en de bijdrage aan extreem weer beoordeeld op haalbaarheid op korte termijn:
- Liggen er kabels en leidingen die het planten van bomen op korte termijn niet mogelijk maken?
- Draagt het bij aan het realiseren van extra waterberging?
- Hoe populair is de maatregel bij de inwoners?
- Is er werk met werk te maken door de vergroening te koppelen aan werkzaamheden aan al gepland werk aan de riolering, stoepen, parkeervakken, enz.
Zelf aan de slag
Groen in de straat is belangrijk, maar groen in de tuin ook. Zelf aan de slag? De gemeente heeft daarvoor al een subsidie, waarover u meer leest op de subsidiepagina (opent in nieuw tabblad). In de komende tijd komen er nog meer mogelijkheden. Hou daarvoor de lokale media, deze website of de social media van de gemeente in de gaten.
Heeft u vragen stel ze dan via klimaat@moerdijk.nl (opent in nieuw tabblad)
Toegankelijkheid
We doen ons uiterste best om de geplaatste bestanden op de website voor iedereen zo bruikbaar en leesbaar mogelijk te maken. Loopt u toch nog tegen een toegankelijkheidsprobleem aan? Of heeft u een vraag of opmerking over toegankelijkheid van het bestand? Mail dan naar web@moerdijk.nl of bel naar 14 0168. Samen met onze medewerkers zoeken wij dan naar een passende oplossing, zodat u toegang heeft tot de informatie.